福山市の不動産なら有正不動産にお任せ下さい
Tel. 084-923-1303
 
 
登録物件数 36件2027.04.01更新
売買物件をMAPから探す
売買物件を一覧から探す
 
不動産オーナー様へ
営業日カレンダー
2026年04月
   1234
567891011
12131415161718
19202122232425
2627282930  
営業時間
月~金 9:00~18:00
土曜 9:00~17:00
定休日
日曜・祝日・祭日
 
携帯サイトはこちらから
QRコード
物件種別:中古住宅
物件名:明治町 売物件(アパート)
■交通
福山駅より徒歩15分
 
■販売区画数
—区画
 
■号地
—号地
 
■構造
ブロック造
 
■築年
1970年6月
 
■間取りタイプ
指定なし
 
■間取り内訳
 
■設備
電気、上水道、下水道
 
■リフォーム内容
 
■地目
宅地
 
■現況
空家
 
■都市計画
市街化区域
 
■用途地域
商業地域
 
■建ぺい率
80%
 
■容積率
400%
 
■土地権利
所有権
 
■私道負担面積
—㎡
 
■地勢
 
■セットバック
 
■引渡し
相談
 
■最適用途
 
■国土法届出
 
■備考
※現地・現況を優先します※接道幅員:北側6.3m (公)道に約15m
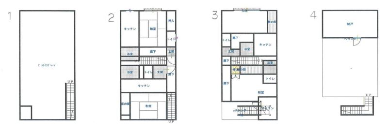
※4階建-1F:66.15㎡ 2F:66.15㎡ 3F:53.28㎡ 4F:15.75㎡

 
■法令上制限等
準防火地域・宅地造成・立地適正・都市機能・居住誘導
 
■取引態様
専任
 
■物件管理番号
明治町 売物件(アパート)
 
■情報登録日
2026-04-13
 
■所在地:福山市明治町5番15号
■価格:880万円
■土地面積/70.61㎡
■土地坪数/21.35坪
■建物面積/201.33㎡
■建物坪数/60.90坪
■駐車場/ 有り
 
1階店舗部分駐車場利用。 現状渡し。
賃貸物件
賃貸物件
 
 
 
 
 
 
 
 
 
 
賃貸物件
お問い合わせ