福山市の不動産なら有正不動産にお任せ下さい
Tel. 084-923-1303
 
 
登録物件数 38件2025.12.03更新
売買物件をMAPから探す
売買物件を一覧から探す
 
不動産オーナー様へ
営業日カレンダー
2025年12月
 123456
78910111213
14151617181920
21222324252627
28293031   
営業時間
月~金 9:00~18:00
土曜 9:00~17:00
定休日
日曜・祝日・祭日
 
携帯サイトはこちらから
QRコード
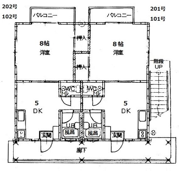
物件種別:アパート
物件名:アーク伊勢丘 201号
■所在地:福山市伊勢丘8丁目7番25号
■賃料:3.5万円
■敷金/1ヶ月
■礼金/1ヶ月
■保証金/—
■管理費等/—
■共益費/無し
■駐車料/ 1台込
 
閑静な住宅街にある1DKアパートです。台所はゆったり5帖。コンビニ・伊勢丘モールへ車で近く買い物便利!
■交通
—より徒歩分
 
■構造
木造2階建ての2階部分
 
■築年
1996年8月
 
■間取りタイプ
1DK
 
■間取り内訳
8洋-5DK
 
■専有面積
29.81㎡
 
■現況
空家
 
■設備
プロパンガス、エアコン、フロ・トイレ別、室内洗濯機置場、押入、最上階、角部屋
 
■備考
※保証会社加入条件あり
※現在修理中、完成後写真掲載予定
 
■引渡し
11月末頃
 
■取引態様
仲介
 
■戸数
 
■鍵交換代
13,200円
 
■保険
19,000円(2年間)
 
■物件管理番号
アーク伊勢丘 201号
 
■情報登録日
2025-12-01
 
賃貸物件
賃貸物件
 
 
 
 
 
 
 
 
 
 
賃貸物件
お問い合わせ