福山市の不動産なら有正不動産にお任せ下さい
Tel. 084-923-1303
 
 
登録物件数 37件2027.01.08更新
売買物件をMAPから探す
売買物件を一覧から探す
 
不動産オーナー様へ
営業日カレンダー
2026年01月
    123
45678910
11121314151617
18192021222324
25262728293031
営業時間
月~金 9:00~18:00
土曜 9:00~17:00
定休日
日曜・祝日・祭日
 
携帯サイトはこちらから
QRコード
物件種別:マンション
物件名:フローレンス丸之内 1304号
■所在地:福山市丸之内1-2-7
■賃料:19万円
■敷金/2ヶ月
■礼金/2ヶ月
■保証金/—
■管理費等/—
■共益費/—
■駐車料/ 1台込 機械式
 
駅から徒歩2分の分譲マンションです。サンステ・コンビニ近く買い物便利。
■交通
福山駅より徒歩2分
 
■構造
SRC19階建ての13階部分
 
■築年
2003年10月
 
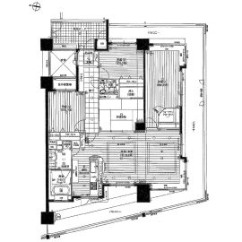
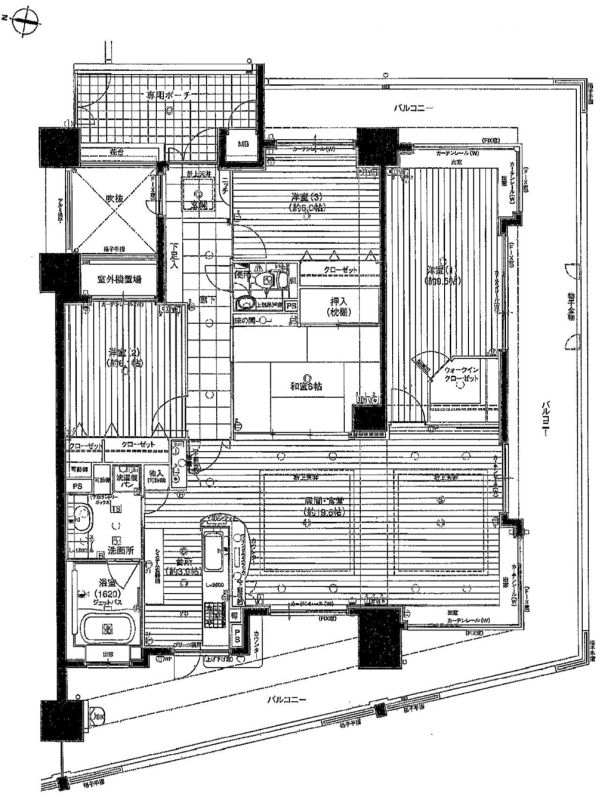
■間取りタイプ
4LDK
 
■間取り内訳
9.5洋ー6.1洋-6洋-6和-23.5LDK
 
■専有面積
110.61㎡
 
■現況
空家
 
■設備
都市ガス、オートロック、エレベーター、フロ・トイレ別、システムキッチン、洗面化粧台、温水洗浄便座、室内洗濯機置場、モニタ-付インタ-ホン、クローゼット、ウォークインクローゼット、押入、下駄箱、角部屋、駐輪場、分譲マンション、宅配ボックス、防犯カメラ
 
■備考
※法人契約希望
※ペット飼育不可・事務所使用不可
※駐車場1台付き<機械式サイズ制限あり>
 
■引渡し
相談
 
■取引態様
仲介
 
■戸数
 
■鍵交換代
実費
 
■保険
住宅総合保険加入要
 
■物件管理番号
フローレンス丸之内 1304号
 
■情報登録日
2026-01-30
 
賃貸物件
賃貸物件
 
 
 
 
 
 
 
 
 
 
賃貸物件
お問い合わせ