福山市の不動産なら有正不動産にお任せ下さい
Tel. 084-923-1303
 
 
登録物件数 33件2027.04.01更新
売買物件をMAPから探す
売買物件を一覧から探す
 
不動産オーナー様へ
営業日カレンダー
2026年04月
   1234
567891011
12131415161718
19202122232425
2627282930  
営業時間
月~金 9:00~18:00
土曜 9:00~17:00
定休日
日曜・祝日・祭日
 
携帯サイトはこちらから
QRコード
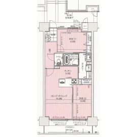
物件種別:マンション
物件名:アルファライフ本通り 1102号
■所在地:福山市今町3-25
■賃料:12万円
■敷金/2ヶ月
■礼金/2ヶ月
■保証金/—
■管理費等/—
■共益費/—
 
駅から徒歩圏内の分譲マンション。日当たり&眺望良好!設備充実で単身の方にもオススメ!
■交通
福山駅より徒歩9分
 
■構造
RC12階建ての11階部分
 
■築年
2013年5月
 
■間取りタイプ
2LDK
 
■間取り内訳
6洋-6洋-13.3LDK
 
■専有面積
60.06㎡
 
■現況
入居中
 
■設備
都市ガス、エアコン、オートロック、エレベーター、フロ・トイレ別、システムキッチン、対面キッチン、洗面化粧台、温水洗浄便座、室内洗濯機置場、モニタ-付インタ-ホン、クローゼット、下駄箱、駐輪場、分譲マンション
 
■備考
※法人契約希望
※保証会社加入条件あり
※ペット不可・事務所使用不可
 
■引渡し
5月下旬
 
■取引態様
仲介
 
■戸数
 
■鍵交換代
36,300円
 
■保険
19,000円(2年間)
 
■物件管理番号
アルファライフ本通り 1102号
 
■情報登録日
2026-04-01
 
賃貸物件
賃貸物件
 
 
 
 
 
 
 
 
 
 
賃貸物件
お問い合わせ