福山市の不動産なら有正不動産にお任せ下さい
Tel. 084-923-1303
 
 
登録物件数 36件2027.04.01更新
売買物件をMAPから探す
売買物件を一覧から探す
 
不動産オーナー様へ
営業日カレンダー
2026年04月
   1234
567891011
12131415161718
19202122232425
2627282930  
営業時間
月~金 9:00~18:00
土曜 9:00~17:00
定休日
日曜・祝日・祭日
 
携帯サイトはこちらから
QRコード
物件種別:マンション
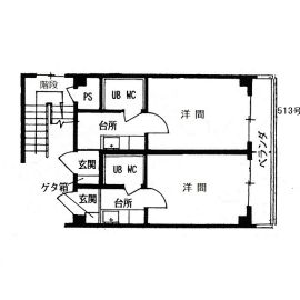
物件名:かぶたんビル 513号
■所在地:福山市三之丸町8-26
■賃料:3万円
■敷金/1ヶ月
■礼金/無し
■保証金/—
■管理費等/—
■共益費/—
 
駅から徒歩3分!無料インターネットあり☆
一人暮らしで予算を抑えたい方におススメ♪
コンビニ&アイネス福山近くて買い物便利です。
■交通
福山駅より徒歩3分
 
■構造
鉄骨造5階建ての5階
 
■築年
1987年2月
 
■間取りタイプ
1K
 
■間取り内訳
6洋-K
 
■専有面積
18.18㎡
 
■現況
空家
 
■設備
プロパンガス、エアコン、IHコンロ、温水洗浄便座、下駄箱、ベランダ、インターネット無料
 
■備考
※保証会社加入条件あり
*洗濯機置き場はベランダです
*風呂・トイレは一緒です
*エレベーターはありません
 
■引渡し
即入居可
 
■取引態様
仲介
 
■戸数
 
■鍵交換代
13,200円
 
■保険
19,000円(2年間)
 
■物件管理番号
かぶたんビル 513号
 
■情報登録日
2026-04-01